Этап 4. Визуализация
Поскольку все согласования были уже сделаны, то на этом этапе я просто ждала визуализации проекта, чтобы лучше представлять, как в итоге та мебель, которую я выбрала, будет смотреться в интерьере.
Этот этап занял больше всего времени со стороны дизайнера, но итог — меня очень порадовал.


С одной стороны — здорово, что можно посмотреть и представить себе, как же в итоге всё будет выглядеть в пространстве. Очень практично. С другой стороны, визуализация поддерживает морально, когда вокруг тебя только коробки и строительный мусор. Посмотришь на картинку и сразу понятно, к чему стремиться.
В более дорогом тарифе дизайнеры делают 3D визуализацию, но мне было достаточно обычной.
Обратите внимание, что в визуализации прорисована кухня. Меня очень растрогала такая внимательность к деталям, ведь сам дизайн кухни не входил в дизайн-проект
Идеи дизайна квартиры-студии площадью 20 кв.м.
Зонирование пространства в маленькой квартире-студии
Грамотное использование пространства позволяет разместить в маленькой квартире-студии все необходимые для комфортабельной жизни зоны:
- гостиную;
- спальню;
- кухню;
- места для хранения.
Дробить пространство на яркие контрастные зоны не рекомендуется, это визуально уменьшит и без того небольшую площадь. Колорировать помещение нужно так, чтобы функциональные области плавно перетекали друг в друга.
Тонко обозначить приватность отдельных функциональных областей без использования перегородок можно при помощи контрастных цветов. Чтобы добиться гармонии и единства цветовой гаммы, можно использовать такой приём: основной цвет стен и напольного покрытия одной области может выступать акцентом в другой. Например, основой гаммы спальни делается глубокий синий цвет, а в качестве ярких пятен выступают белоснежные акценты. При этом на кухне белый выступает в качестве основы, а синий – в качестве акцента. Таким образом, при достаточно чётком разделении зоны гармонично сочетаются между собой.
Многоуровневые потолки, подиумы и арки с широким проёмом помогают визуально разделить пространство, не перегружая его. При этом могут быть установлены не просто декоративные конструкции, а практичные системы хранения в виде антресолей и полок.
Создать максимально возможный в небольшом помещении уровень приватности помогает декоративная конструкция или фальшперегородка, оборудованная под полку (например, для телеаппаратуры или книг).
Высокие потолки позволяют возвести в квартире-студии второй уровень, где можно расположить зону с высоким уровнем приватности, например, спальню.
Выбор стиля для интерьера маленькой квартиры-студии
Интерьер в стиле минимализм идеально подходит для smart-студии. Его основной чертой является пространственная свобода, которая достигается несколькими приёмами. Используется минимум мебели и аксессуаров. Многоуровневое освещение в сочетании со светлой палитрой и блеском стекла и металла визуально делает помещение просторным, наполненным светом и воздухом. Декоративные элементы имеют простые формы и линии, а для отделки используются природные материалы.
Стиль контемпорари очень близок к минимализму, но он более доступный и, как правило, используется не профессиональными дизайнерами, а владельцами жилья при желании сэкономить. Этот стиль допускает использование недорогих отделочных материалов и аксессуаров, поэтому контемпорари можно назвать бюджетным вариантом минимализма.
Ещё один стиль, позволяющий создать эффектный интерьер при ограниченном метраже – лофт. Ему свойственно зонирование без помощи перегородок, «индустриальный» декор, сочетание старых (или состаренных) вещей с современными. Комбинирование антиквариата с последними новинками позволяет создать интерьер на базе уже имеющихся или купленных на блошиных рынках предметов мебели и аксессуаров, при этом выглядеть он будет достаточно дорого.
Функциональная мебель для квартиры-студии небольшой площади
От использования массивной мебели лучше сразу отказаться. Отдать предпочтение лёгкой практичной мебели, которая может складываться и использоваться для разных целей, возможно, сделанной на заказ. Качественный складной диван позволяет трансформировать спальную область в гостиную. В качестве обеденного стола может быть использована откидная столешница, а мобильные системы хранения в виде отдельных лёгких блоков не только удобны с точки зрения функциональности, но и позволяют регулярно менять облик комнаты.
Технику и мебель лучше использовать встраиваемую, шкафы и полки делать неглубокими. Ниши, перегородки, подиумы, место под кроватью нужно по возможности использовать в качестве скрытых полок, чтобы полезное пространство не пустовало.
Расширить пространство помогают отражающие поверхности, поэтому размещение зеркал на дверцах шкафа рационально и с точки зрения максимальной экономии места, и для достижения нужного визуального эффекта.
Цель дизайна
Цель оправдывает средства
На небольшой площади должна поместиться полноценная квартира, в которой можно комфортно жить и даже принимать гостей.
- Как добиться, чтобы появилось ощущение просторного помещения: Визуально необходимо сделать квартиру большой.
- Чтобы ничто не давило и улучшало восприятие пространства, рекомендуется все основные элементы выполнять в светлых тонах.
- В ней довольно удобно проживать студенту либо молодой паре.
- Совершенно не подходит для размещения полноценной семьи квартира студия 21 кв м. Дизайн должен решить свою основную задачу, создать просторное и функциональное помещение, где все имеет определенный смысл.
Обычно используют светлые пастельные оттенки, чтобы расчленить имеющееся пространство на зоны:
- Прихожую.
- Кухонную.
- Столовую либо гостевую.
- Спальную.
Применяемые методы
Несколько дизайнерских хитростей
Чтобы достичь желаемого результата, выполняя оформление своими руками, рекомендуется следовать двум правилам:
- основное – это стараться, чтобы дизайн не «съедал» полезное пространство;
- нельзя переборщить с дизайном.
Существует ряд способов, как можно обмануть пространство, и заставить его казаться больше. Дизайн квартиры студии 20 кв. м имеет свои особенности.
Обратить внимание
Рекомендации
Единственное окно.
Обрамляется светлыми длинными шторами до пола, которые визуально делают комнату выше.
Верх квартиры.
Не рекомендуется нагружать полками или шкафами, чтобы создавалось ощущение бесконечность потолка.
Пол, фасады мебели.
Желательно использовать глянцевые поверхности, которые отражают много искусственного света, и квартира студия 24 кв м выглядит больше.
Зеркала (в полный рост, в необычных рамках, повторяющихся геометрических фигур).
Расширяют помещение.
Нужно предварительно определиться с общим стилем, чтобы не создавать слишком пестрый дизайн. Квартира студия 22 кв. м может иметь яркое оформление. Гармоничную атмосферу создают смысловые акценты. Их необходимо использовать не более одного (двух). Роль акцентов могут играть, например:
- Фотообои.
- Необычная люстра.
- Одна какая-либо яркая деталь мебели.
Функциональное пространство
В маленьких помещениях очень просто уничтожить уют нагромождением лишних вещей
Чтобы создать проект квартиры студии 23 кв, необходимо все продумать до мелочей. Тогда его реализация и отделка помещения будет проводиться достаточно легко и без затруднений.
Итак:
- Гардеробные, места для хозяйственных вещей, антресоли помогают поддерживать порядок в квартире.
- Ключевое значение имеет размещение кухни (помочь может инструкция).
- Надо грамотно разделить рабочую зону с местом для отдыха.
В небольших квартирах необходимо продуманно использовать:
- Декоративные перегородки.
- Различное освещение.
- Различное напольное покрытие.
Так можно создать яркий дизайн, где на едином пространстве появятся эргономичные уголки. Когда заканчивается ремонт в квартире студии 20 кв м, появляется место для формирования нового интерьера. Для создания атмосферы необходимо пространство.
Размещение мебели
Как правильно расставить мебель по своим местам
Маленький метраж затрудняет выбор мебели, поэтому чаще вся обстановка выполняется на заказ по заданным размерам (цена на нее значительно выше, чем на стандартную):
- На имеющемся пространстве необходимо разместить и спальное место, и диван в зоне отдыха.
- Хорошо оградить спальню и закрыть ее от посторонних глаз, одновременно создавая уют и ощущение уединенного места. Для этих целей может использоваться платяной шкаф или полка для бытовых предметов.
- Для образования дополнительной системы хранения часто основание кровати поднимается, и внизу располагаются вместительные ящики. Интерьер квартиры студии 20 кв. м должен быть продуман.
Эргономично устанавливать полностью встроенную кухню
Когда верх гарнитура поднят под потолок, то появляется много места для хранения кухонных принадлежностей. Смотрится стильно, если выделено несколько ярких акцентов.
На кухне необходимо предусмотреть рабочее пространство, достаточное для готовки, а также организовать небольшую столовую на 2-3 персоны. Потому что помещение небольшое – это квартира студия 22 метра-25 метров.
Дизайн может предусматривать гостиную со спальней, размещенных в одном, не разделенном пространстве. В ней можно расположить удобный диван для отдыха, журнальный столик и телевизор.
Расставляем мебель
В квартире-студии не должно быть слишком много предметов мебели больших размеров. Такие вещи могут занять лишнее свободное пространство, мешая проходу и делая общий ансамбль некрасивым.



Диваны и кресла, относящиеся к гостиной зоне, следует разместить сразу за кухонным гарнитуром. Эти пространства можно разделить стеклянной перегородкой или барной стойкой.


Если вы решили поставить мягкую мебель возле спальной зоны с двуспальной кроватью, то отделить гостиную можно при помощи ширмы или системы высоких стеллажей.
Рабочую зону с компьютерным столом и стулом можно обустроить рядом с гостиной или напротив двуспальной кровати.

Многие владельцы квартир обращаются к более оригинальному решению и рабочий стол делают продолжением кухонного гарнитура. Так существенно экономится свободное пространство, которого и без того не хватает в 26 кв. м.

Если в квартире присутствует балкон, то одну из зон можно оборудовать на его территории. Например, там можно поставить кухонный гарнитур или оборудовать рабочий кабинет с небольшим книжным шкафом.


В маленькой ванной комнате лучше установить душевую кабину. Она может быть прямоугольной или угловой. Второй вариант экономит больше свободного пространства для установки унитаза и раковины с настенным зеркалом.

Если площадь позволяет, то можно поставить и обычную ванную и напротив нее (или по бокам) поставить все остальные элементы санузла.


Цветовые решения
Самым лучшим вариантом для квартиры-студии небольшой площади являются светлые материалы отделки и предметы мебели в аналогичном исполнении.

Особенно привлекательно и гармонично в таком жилище будут смотреться белые, бежевые, тускло-желтые, кремовые, светло-карамельные и светло-коричневые оттенки. Подобные расцветки в тандеме с правильно подобранным освещением способны визуально увеличить имеющееся пространство.

Присутствие ярких и контрастных деталей не будет лишним. Это могут быть элементы декора, темные вставки на мебели и кухонном гарнитуре, контрастные спинки стульев, яркие столешницы и тд. Главное – не перегрузить такими деталями имеющееся пространство.


Размещение мебели в студии 23 кв м.
Главной целью расположения мебели является разделение зон в помещении. Здесь необходимо следовать одному правилу: все высокое — вдоль стены, все низкое — разделитель помещения.

Зонировать пространство ограниченного метража можно с помощью мебели.
Важно! Предпочтительная мебель для маленькой студии должна быть складной. Идеальным решением будут сборные столы, предметы-трансформеры, закрывающиеся стеллажи с зеркалами
Следует избегать массивной мебели.
Зонирование пространства:
- Отделить кухню от спальни можно не только с помощью шкафов и барной стойки, но и используя другие приспособления.
- Цвет, фактура полового покрытия. Использование различных материалов и небольших порогов для разделения зон отлично вписывается в интерьер небольшой комнаты. Можно использовать подиум для размещения кухонной зоны.
- Потолок. Сделав потолок многоуровневым, можно добиться эффекта зонирования.
- Ниша. В ней можно разместить шкаф и хранить различные предметы.
- Обои. С помощью разницы в отделке стен можно добиться разделения жилой зоны на несколько помещений.
- Декоративные перегородки. Использование ширм, кисеи, стеклянных перегородок, раздвижных дверей позволит разделить помещение.

Желательно всю меблировку или большую ее часть, подбирать одного цвета, похожей по форме и стилю.
В квартире-студии 23 кв м возможно проживать с удобством и комфортом 1-3 людям. Проблему нехватки свободного пространства можно решить с помощью грамотно подобранной мебели, дизайна интерьера и освещения.

Такой интерьер сочетает компактность с комфортом, оригинальность с многофункциональностью, это принципиально новый формат жилья.
Стиль и цветовые решения
Даже в 18 метровой квартире-студии применимы несколько стилевых решений, таких как:
Лофт – индустриальный стиль, которому свойственны грубые необработанные материалы, открытые коммуникации. Кирпичная кладка, не скрываемые трубы и системы вентиляции – вот, что характеризует лофт. Данный очень популярный, но дорогой стиль предполагает некий минимальный набор предметов интерьера. Основные цвета: серый, черный, белый, терракотовый.
Хай тек – современный стиль прямых линий и холодного глянцевого металла. Отличается простотой и четкостью. Цветовая гамма, как правило, холодная. Присутствуют такие цвета, как зеленый, синий, красный, фиолетовый, серый, белый.
Прованс – легкий непринужденный стиль, обои в цветочек – это про него. Характеризуется теплыми и спокойными тонами: бежевым, лавандовым, зеленым, розовым, коричневым.
Минимализм – название говорит само за себя. Минимум мебели и вещей. Больше воздуха и света. Оформить интерьер можно в любой гамме.
Эко стиль – трава, дерево, камень. Три основополагающих ключа данного стиля, но можно заменить материалы соответствующими фактурами. В этом направлении используют все природные цвета и сочетания.
Классический – деревянная мебель, натуральные дорогие ткани, возможно украшение лепниной. Роскошный и благородный. Цвета применяются пастельные, однотонные.
Эклектика – смешение стилей
Однако важно не перестараться, иначе пространство будет казаться подавленным и чрезмерно перегруженным. Такой интерьер – для довольно смелых людей, которым свойственна оригинальность. Цветовая гамма абсолютно любая
Цветовая гамма абсолютно любая.
Футуризм – стиль будущего, с необычной, но не менее притягательной геометрией. Холодная палитра сочетает в себе стиль и некое неземное присутствие. Не слишком распространен, его выбирают творческие люди с особым взглядом на мир.
Идеи интерьера
Прекрасный ярким сочетанием считается белый (основа) и красный цвета.
Если вы решили сделать полностью белую квартиру, то оставьте потолок необработанным то есть в его первоначальном виде (если у вас новостройка) и дополните интерьер яркими красками.
Также при абсолютно белом интерьере сделайте акцент на пол – он может быть деревянным (из натурального дерева или паркета).
Замечательным вариантом считается стиль лофт – сочетание белого цвета, черных вставок, дерева и кирпича – прекрасный интерьер для маленькой квартиры.
В квартирах с высоким потолком (от 3 метров) делают второй ярус для использования помещения по всем параметрам. Соединяют уровни небольшой лестницей. На «втором» этаж можно обустроить спальное или рабочее место.
Особенности, преимущества
Такое жилье экономкласса подойдет для одного молодого человека, двух студенток, семьи без детей, двоих пенсионеров, временного проживания родителя с ребенком. Стоит студия такого метража в несколько раз дешевле обычной однокомнатной, да и по коммунальным платежам плата выйдет невысокая – света, воды, отопления здесь расходуется сравнительно мало, ведь мыть, обогревать, освещать придется совсем небольшую площадь. Для проведения любого, даже самого дорогостоящего, качественного ремонта в крошечной студии, понадобится намного меньше строительных материалов, а значит затраты будут относительно невелики.

Здесь не будет ничего лишнего, что собирает на себя пыль – оно попросту сюда не поместится
Важно максимально использовать каждый выступ, нишу, свободный угол. Окно в такой квартире одно, реже два – этого вполне достаточно для того, чтобы помещение было светлым. Дверей также две – входная и в санузле, иногда три, если туалет с ванной раздельные
Дверей также две – входная и в санузле, иногда три, если туалет с ванной раздельные.
Планировки
В настоящее время существуют не только типовые решения, но и нестандартные планировочные подходы, к которым относятся круговая, угловая квартира или разновидность жилья, как чешка, бабочка или распашонка.
Самым главным аспектом в дизайне квартиры, является создание грамотного проекта. Планировка может не всегда удовлетворять потребности хозяев, поэтому в данном случае, ее часто подвергают радикальному видоизменению.
Намного проще распределить пространство на отдельные функциональные участки в жилье с открытой планировкой. Простыми в ремонте и переносе стен, являются сталинки в кирпичном доме, более сложной перепланировкой отличаются хрущевки и брежневки в панельном доме с монолитными железобетонными стенами.
Однокомнатная квартира 50 кв. м.
Для правильного выбора наиболее благоприятного оформительского способа, в первую очередь учитывают все особенности однушки, ее специфику планировки, наличие ниш, выступов, размещение окон и прочее.
Данный метраж в 50 квадратов, является довольно солидным для однокомнатного жилья. Такое пространство можно оборудовать отдельным уголком в виде тихой и уютной спальни, расположенной в самом дальнем углу. Для зонирования лучше использовать облегченные или прозрачные перегородки, вместо сплошной стены, забирающей полезную площадь.
На фото дизайн однокомнатной квартиры 50 квадратов с гостиной, объединенной с кухней.
Подобная просторная и комфортная квартира 50 кв., прекрасно подойдет одному человеку или молодой семейной паре. Для дизайна однушки можно подобрать самое разнообразное интерьерное решение, например, расположить спальное место в нише, а остальную площадь задействовать под совмещенную кухню-гостиную, таким образом получится добиться невероятно практичного оформления.
Двухкомнатная квартира 50 м2
В данной квартире для правильного распределения площади и функционального предназначения помещений, следует обратить внимание на то, кто в дальнейшем будет проживать в двушке. Например, для семьи с ребенком, обязательно нужно обустроить детскую комнату, а для одного взрослого человека, будет уместна планировка с объединенной кухней-гостиной и отдельной спальней. . На фото совмещенная кухня-гостиная в дизайне евродвушки 50 квадратных метров
На фото совмещенная кухня-гостиная в дизайне евродвушки 50 квадратных метров.
В большинстве улучшенных квартир евродвушек, имеется балкон или лоджия, становящаяся прекрасным дополнительным местом, которое можно объединять с комнатой для оборудования рабочего кабинета или зоны отдыха.
Жилое пространство с угловой планировкой, может иметь не менее оригинальный дизайн. Угловое помещение с двумя оконными проемами, с легкостью разделяется на два участка с использованием различных предметов мебели или перегородок.
Квартира-студия площадью 50 метров
Для тех кто предпочитает простор и открытое пространство, квартира-студия станет самым оптимальным вариантом для проживания. Такое казалось бы, не слишком большое помещение, с помощью различных перегородок, получается визуально преобразовать в довольно габаритную жилую площадь.
Одним из самых популярных планировочных решений, считается разграничение студии на спальную зону и гостевую с кухней, столовой, гардеробом и санузлом. Для отделения места для сна, в основном используют специальные перегородки, ширмы или арки.
Квартиру-студию лучше обставлять более светлой компактной мебелью или выбирать трансформирующиеся конструкции. В качестве зонирования, также можно применить разные элементы мебели, в виде стеллажа, шкафа или барной стойки, а также разделить пространство с помощью подсветки, контрастной отделки, разноуровневого пола или многоуровневого потолка.
Благодаря зонированию удается добиться более практичного и продуманного дизайна, рассчитанного для комфортного проживания двух человек.
На фото дизайн квартиры-студии 50 квадратов, выполненный в современной стилистике.
Особенности
При обустройстве интерьера студии важно учитывать несколько главных особенностей:
- Квартира не имеет перегородок, отделяют они только санузел.
- В большинстве студии 23 кв. м. имеют прямоугольную форму с одним окном или лоджией. За редким исключением такие помещения бывают квадратной формы, однако, как показывает практика, именно для студии в 23 квадрата квадрат – не очень удобная форма.
- Помещения без лоджий и балконов чаще всего делятся на две зоны: кухня и зона отдыха. Если у вас есть дополнительное пространство, то его можно присоединить к основному, либо сделать полноценный кабинет.
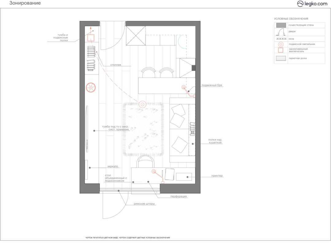
Этап 2. Зонирование
Зонирование оказалось самым простым этапом и я это во многом связываю с тем, что я уже работала с дизайнером над планированием пространства.
К моменту работы в Legko.com я решила вопрос с кухней и вынесла хранение вещей на лоджию. Оставалось разместить рабочий стол, спальное место и зону отдыха. Я амбициозно решила, что хочу всё это вместить на маленькой площади квартиры-студии.

Этот вариант мне не подошёл, потому что у меня уже была установлена кухня с барной стойкой и менять это я не планировала.
Изначально я хотела разместить стеллаж и телевизор у стены рядом с кухонной зоной, а раскладной диван напротив.
Ася подготовила два варианта зонирования и сразу предложила созвониться. За 30 минут я задала возникшие у меня вопросы, она прокомментировала все решения и в итоге я согласовала один из вариантов без каких-либо изменений.
Дизайнер убедила меня, что в таком случае, если кровать будет разобрана, то я по сути перегорожу всю комнату спальным местом и барной стойкой. Упс, кажется, я чуть не ошиблась. Она же предложила не делать стеллаж с полками вокруг телевизора, чтобы не загромоздить пространство.

Второй вариант зонирования, который я согласовала после того, как дизайнер прокомментировала мне несколько моментов, о которых у меня возникли вопросы.
Составляем дизайн проект
Основная задача, которую нужно решить при решении пространства квартиры-студии в 24 кв. м – это разместить на небольшой площади максимум нужных вещей, не перегрузив при этом интерьер различными предметами. Каким бы ни был дизайн помещения, нужно придерживаться таких базовых правил:
- Игнорировать деление помещения на зоны нельзя! Например, зона кухни отлично отделяется от остального помещения барной стойкой, разноуровневым полом или потолком;
- Перегружать и без того небольшую квартиру мебелью не нужно. Приветствуется использование встроенной быттехники, а также легковесной трансформирующейся мебели;
- Балкон или лоджию можно использовать как смежное функциональное пространство. Как правило, здесь размещают место для работы или отдыха, что позволяет сэкономить место в квартире;
- Присутствие темных тонов в интерьере нежелательно. Исключением из правила может быть стиль хай-тек, где дозированное присутствие черного цвета будет оправдано. Использование светлых, позитивных, солнечных тонов при выборе оттенков мебели, потолков, настенных и напольных покрытий позволяет зрительно расширить жилье;
- В небольшой студии удобно зонировать помещение с помощью осветительных приборов: бра, потолочных люстр, групп из точечных светильников или подсветок.
Особенности квартиры студии
Секрет популярности квартир-студий на рынке недвижимости в том, что стоимость их ниже, чем классических помещений со стенами, а возможностей для оформления оригинального дизайна несравненно больше. К преимуществам помещений с открытым пространством перед привычным однокомнатным вариантом относятся:
- Возможность часто менять интерьер;
- Ремонт в студии обходится гораздо дешевле, чем в классической квартире, за счет отсутствия межкомнатных стен и небольших габаритов помещения;
- Грамотное и умелое зонирование помещения создает уютную и максимально комфортную атмосферу;
- Возможности для реализации самых смелых дизайнерских планов – по размещению мебели, бытовой техники, использованию различных материалов и декоративных элементов;
- Уборка малогабаритного помещения не отличается трудоемкостью и не занимает много времени.
- Отсутствие личного пространства и приватности. В сущности, студия – это одно большое помещение. Поэтому она подходит либо для одиночек, либо для проживания бездетной пары. Для семьи с ребенком это вряд ли подойдет;
- Распространение звуков и запахов по всей квартире.
Уютная гостиная 24 квадрата: нюансы
В обычной квартире, да и в небольшом частном доме гостиная и кухня исполняют на самом деле функции 3-х помещений: зала, собственно, кухни и столовой. Последняя в планировке жилища появляется крайне редко. В обычных случаях, когда обедает только семья, столовой выступает кухня. Праздничное застолье переносят в гостиную.
Однако если объединить 2 помещения, то образованная гостиная 6 на 4 метра с легкостью справится со всеми задачами.
На фото – дизайн зала в 24 кв. м. в квартире.
С одной стороны, полученное пространство предлагает большой простор для дизайна.
С другой – требует выполнения некоторых ограничений с тем, чтобы получившееся помещение было действительно удобным.
- В первую очередь определяют местоположение будущей кухни. При этом нужно учитывать, что в рабочей зоне должно быть достаточно хорошее освещение. Так что желательно кухонный уголок устраивать возле окна.
- Второе требование – эргономичность. Хозяйке приходится намного меньше трудиться, если мойка, холодильник и печь располагаются по углам равностороннего или равнобедренного треугольника, а не в ряд вдоль стены или на большом расстоянии друг от друга. Так что лучший вариант – это действительно «кухонный уголок», то есть, угловая или П-образная кухня. Последний вариант есть на следующем фото дизайна гостиной 24 кв. м.
Не менее важный момент – запах и шум. При готовке запахи неминуемо появляются. Чтобы их избежать, нужно заранее предусмотреть установку мощной вентиляции. А вот со вторым недостатком можно только смириться. Несколько уменьшить шум можно лишь приобретая кухонную технику, работающую с минимальным звуком.
Кухня, столовая и гостиная на общем пространстве по, сути, представляют собой 3 зоны одного и того же помещения.
Соответственно, оформляются они по всем правилам зонирования.
Первое правило при этом – соблюдение единства оформления. При этом подразумевается как стиль, так и использование однотипных или близких материалов. Так, в стиле минимализма кухонная зона может быть отмечена отделкой другого цвета, но при этом ни в коем случае не допускаются обои в цветочек. Также в лофт стены гостиной могут имитировать бетон, а на кухне – кирпич, однако ни в том, ни в другом случае не разрешаются пластиковые панели.
На фото – планировка квадратной гостиной комнаты 24 кв. м.
- Второе правило – создание общего пространства. Зоны отделяются друг от друга, но не кажутся отдельными помещениями. При одинаковом цвете стен и потолка можно выделить зону столовой другим цветом пола – кафельной облицовкой, например. А если для зонирования использовались элементы отделки на стенах, то пол должен быть одинаковым. В этом случае интерьер гостиной в 24 кв. м. будет выглядеть цельным.
- Третья рекомендация касается цветовой гаммы. Единство палитры соблюдается совершенно четко.
На фото – дизайн гостиной в частном доме.
Если для зонирования используется мебель, то для отделения зон больше ничего делать не нужно. Это универсальный и самый доступный вариант. При этом дизайн гостиной 4 на 6 метров ничем не ограничивается.
Еще один универсальный способ зонирования – освещение и устройство потолка. При этом отделка пола и стен может оставаться совершенно одинаковой, а мебель подбирается одного цвета. Однако гипсокартонные потолочные конструкции и разного устройства светильники делят объединенную гостиную не менее эффективно.
Выбор стилевого оформления и цветовой гаммы
Стиль для дизайна помещения может быть любым. Это и хай-тэк, минимализм, модерн или даже поп-арт. Все зависит только от желания владельца.
Дизайн маленькой студии бывает в разных цветах. Для этого стоит заранее продумать концепт относительно выбранного стиля. Дополнить стиль можно даже рисунками на стенах.
Цвет помещения тоже подбирается под предпочтения владельца. Можно сделать зональное деление по цветам, что тоже будет смотреться. Если сменить оттенок в разных зонах, то это визуально разграничит пространство.
Студия 21 кв. м. должна быть оформлена таким образом, чтобы резкие цвета не напрягали жителей помещения. Для этого стоит выбирать теплые цвета как мебели, так и помещения в целом.
Основные рекомендации
Помните о том, что при создании интерьера на имеющихся 26 квадратах каждая вещь в доме должна выполнять одну или даже несколько функций. Мебель лучше всего подбирать встроенную или трансформируемую, как уже было сказано выше.
Для того чтобы увеличить визуально комнату, стоит подумать над тем, чтобы расширить окна. Даже 30 сантиметров могут сыграть решающую роль в общем виде квартиры.
Дизайн маленькой квартиры студии 26 м, фото
Не забывайте и о том, что на стены можно клеить фотообои с 3д изображениями. Особенно помогут увеличить пространство те, что представлены в виде открытых окон на террасу или изображающие дорогу, уходящую вдаль. Такой зрительный обман поможет расширить стены узкой комнаты.
Не бойтесь активно использовать глянцевые и отражающие поверхности, кроме того, лучше отказаться от помпезных стилей интерьера: от традиционной классики, стиля барокко, рококо, ампир и всех остальных исторических стилей, которые подойдут для современных больших квартир
И, конечно, важно не забывать о подвесных полках и антресолях
Сложность при разработке дизайна маленькой квартиры-студии в том, что на такой небольшой площади нужно разместить все вещи, при этом квартира должна оставаться уютной и комфортной. Поэтому стоит хорошо продумать планировку квартиры, для того чтобы даже маленькое помещение ничем не уступало большему — как по своей вместительности, так и по внешнему виду.
Студия — лучший вариант для маленькой семьи
Небольшая квартира студия с двумя дверьми, одна из которых — для входа с улицы, а другая — в ванную и туалет, просто идеальна для семьи из двух человек.
Если же у вас есть дети или домашние питомцы, то вам стоит подумать над приобретением большего жилья или, как минимум, о зонировании помещения.
Если у вас есть взрослые дети, которые живут вдали от вас, то мысль о ремонте в вашей квартире с перепроектированием ее в квартиру-студию — удачна и своевременна.
Из двух маленьких комнат, вы создадите одну комнату огромных размеров, в которой при правильной расстановке элементов интерьера получите практичное и уютное помещение
. В нем можно будет отдохнуть и набраться сил, так как пространство будет значительно расширено и стены не будут сдавливать помещение, делая его еще меньше.

Во время перепланировки небольших квартир-студий предполагается, что:
- материалы, используемые для отделки, а также текстильные ткани должны подбираться только в светлой цветовой гамме;
- мебель должна быть подвижной и практичной;
- в интерьере должны присутствовать поверхности и перегородки из стекла, зеркала или другие современные варианты.
Важно!
Ни в коем случае не допускается при дизайне небольших квартир превалирование темной цветовой гаммы, использование громоздкой меблировки и оформление окон тяжелыми классическими шторами

При перепланировке квартир небольшого размера основным моментом является освобождение пространства от ненужных вещей, поэтому даже присутствие излишеств в декоре может испортить интерьер. Ведь нужно стремиться создать дом, в котором будет уютно жить, то есть сделать квартиру, где в глаза бросается только порядок и чистота
. Для небольших квартир комфорта можно достичь только таким образом.

![Дизайн квартиры-студии 29 кв. м. [50+ фото], планировки, проекты](http://china-cosm.ru/wp-content/uploads/b/d/5/bd588aea89bc54d34d1284a62b750d97.jpeg)
![Дизайн квартиры-студии 30 кв. м. [80+ фото] планировки, зонирование](http://china-cosm.ru/wp-content/uploads/e/9/c/e9c01df2aa3e40541b1041da5da56853.jpeg)



![Дизайн квартиры-студии 20 кв. м. [60+ фото] планировки, зонирование](http://china-cosm.ru/wp-content/uploads/c/c/7/cc749b25137c17c77a411112ca8d9e66.jpeg)


![Дизайн студии 22 кв. м. [40+ фото] планировки, идеи обустройства](http://china-cosm.ru/wp-content/uploads/6/f/d/6fd12c71a67940e8435f4add4677ec9a.jpeg)




![Дизайн квартиры 35 кв. м. [60+ фото] планировки 1-комнатных, студий и евродвушек](http://china-cosm.ru/wp-content/uploads/d/7/d/d7d762aec277203b788c54a1dd6ddcb1.jpeg)


![Дизайн квартиры 36 кв. м. [60+ фото], планировки 1,2-комнатных, студий](http://china-cosm.ru/wp-content/uploads/c/e/9/ce928a52975aa1b443f66bb2dd56bf5f.jpeg)




![Дизайн студии 25 кв. м. [60+ фото] планировки, идеи зонирования](http://china-cosm.ru/wp-content/uploads/1/f/6/1f650e49bcc66ae700c949a2389ed88d.jpeg)
![Дизайн квартиры 50 кв. м. [100+ фото] идеи для 1,2-комнатных и студий](http://china-cosm.ru/wp-content/uploads/e/6/9/e69cb738ee6ead87dacf4bae209eca58.jpeg)






