Особенности оформления мансарды
Мансарда — это еще одна возможность расширить пространство в жилом доме. Для таких целей могут быть разработаны типовые или индивидуальные проекты. Но в каждом плане на чертеже есть различные варианты использования свободного пространства.

Мансарда-спальня для двоих детей подросткового возрастаИсточник twitter.com

Как обставить спальню в мансарде в стиле лофтИсточник yandex.com

Обустройство гостиной на чердаке дома в мансардеИсточник hqarch.ru
Помещение под крышей может быть организовано по-разному. Для этого лучше выбирать один дизайн интерьера и практиковать эффективное зонирование. Например, оформить мансарду можно в качестве личного рабочего кабинета, зимнего сада или домашней библиотеки:
- Оформление мансарды может создаваться разными способами. Например, скаты крыши часто обшивают гипсокартоном изнутри. Они играют роль стен.
- С помощью гипсованного материала можно с легкостью реализовать привычное прямоугольное внутреннее пространство. Для этого достаточно обшить потолок и стены полотнами, придав нужную форму.
- Мансарда может стать функциональным помещением. В одном из углов комнаты удачно разместиться небольшая бытовая техника.
- На этаже с мансардой можно разместить несколько просторных помещений. Здесь отлично впишутся детская, спальня и останется небольшое свободное пространство в виде коридора.
- Мансарда может послужить для создания отдельной душевой или ванной комнаты. В таком просторном помещении можно отлично разместить гарнитур, банные принадлежности. Проблема может возникнуть только с отоплением и дорогостоящими коммуникациями.
В мансардном этаже можно организовывать зону для приема гостей и создавать комнаты разного назначения: для отдыха, работы, развлечения.
Дом со сторонами 8х10
В доме со сторонами 8х10 метров очень удобно размещать не только функциональные помещения, но и продумать гардеробную, кладовую или подвал. Все это легко разместить при рациональном планировании перегородок.
В таком доме можно удачно разместить просторную кухню или даже сделать из нее столовую. В большинстве случаев совмещают кухню с гостиной между капитальными стенами. Спальню можно расположить параллельно столовой, часто для нее выбирают дальнюю часть дома.

План дома 80 кв.м с наличием дополнительных общественных комнатИсточник dachmir.ru

План дома с большим холлом, гостиной и кухней: 3 в 1Источник elbrus66.ru

Комнаты в доме при площади 80 кв.мИсточник karkasmaster.com
Маленькие частные дома: какой размер выбрать?
Размер потенциального проекта маленького дома является важным критерием выбора, согласно которому человек ищет оптимальный вариант жилья. В коллекции небольших домов можно найти постройки с полезной площадью до 150 м². Людей так же интересуют здания до 110 м² и планы до 80 м². Строительство очень небольшого дома, например, в 60 м² может также стать идеальной альтернативой покупки квартиры среднего размера, поэтому многие выбирают именно это решение. Ваш собственный дом — это в первую очередь улучшенный комфорт семейной жизни, но также собственный сад, личный гараж или навес для машины.
Проектирование
Стоит внимательно продумать расположение всех комнат. Необходимо грамотно определить размеры помещений, их назначение, расположение и связь друг с другом.

Основа проекта — создание фундамента. Чтобы не усложнять процесс проведением расчетов, можно воспользоваться стандартными чертежами. Это уменьшит затраты времени и денег.







При составлении проекта стоит учесть:
- расположение сторон света;
- наличие грунтовых вод;
- особенности почвы;
- наличие на территории других строений;
- удобство подключения к коммуникациям;
- форма здания;
- количество комнат.

Рационально проектировать кухню рядом с ванной. Это упростит монтаж водопровода и канализации.

Почему мы предлагаем одноэтажные дома с террасой
Частный дом становится тихой пристанью или местом для творчества и развития бизнеса, уголком для релакса и местом веселого время препровождения. И при этом никто из соседей не станет стучать по батареям, или обрывать звонок с претензиями о шуме. Но почему именно одноэтажный с террасой?
Терраса — уголок для релакса
Такие дома — подходят для загородного отдыха, молодежи, людей старшего возраста. Основным девизом становится единение с природой. Дома замечательно вписываются в любой ландшафт. Их проще возводить на проблемных грунтах: с высоким стоянием грунтовых вод, песчаниках. Не нужно сооружать сложные фундаменты. Обилие света в помещениях гарантировано. Что еще дарит такая входная зона? Возможность организовать:

Отличный вариант для летней кухни
- Летнюю кухню.
- Столовую на свежем воздухе.
- Место для мангала.
- Детскую площадку.
- Сушку белья.
На небольших участках можно без беседки и сэкономить финансы на ее строительстве. Открытая площадка поднимает статус жилья. Она выглядит стильно, чем традиционные веранды.

Открытая площадка выглядит стильно
Стоимость проектирования одноэтажного частного дома
Затраты на строительство загородного одноэтажного дома зависит от многих факторов. За разработку проектной документации следует заплатить отдельно. Стоимость работ привязана к квадратуре будущих жилых помещений. Предлагаем познакомиться со средней стоимостью услуг на проектирование:
| Вид работ | Средняя цена, руб. |
| Разработка эскизного проекта | 15 000 |
| Разработка архитектурного проекта | 35 000 |
| Разработка конструктивного проекта | 60 000 |
| Проект электроснабжения | 15 000 |
| Проект отопления | 15 000 |
| Проект естественной вентиляции | 10 000 |
Типовые решения обойдутся значительно дешевле. Средняя цена составляет 35 000 рублей за готовый пакет документов. Многие проектные компании проводят акции, поэтому приобрести проект можно по меньшей цене.
Watch this video on YouTube
Watch this video on YouTube
Фасад одноэтажного дома в современном стиле
По итогам возведения каркаса жилого здания будущим владельцам предлагают различные варианты интересных фасадов. Чем интереснее конструкция дома, тем изящнее и современнее должна быть его внешняя отделка.
Красивый фасад жилого дома в современном стиле Источник tr.pinterest.com
Для облицовки фасада одноэтажного дома используются деревянные панели, декоративная штукатурка, короед, простое окрашивание красками, приспособленными для уличных условий
Если жилое здание имеет неправильную форму с четкими углами, то чтобы привлечь внимание верхнюю часть фасада окрашивают, нижнюю обшивают лакированными влагостойкими ламелями
Дом, выполненный по технике кирпичной кладки с красивым фасадом Источник mirlandshaft.ru
Если строительство дома выполняют из кирпича, то еще на этапе строительства переднюю стенку дома продумывают заранее. Кирпичи выкладывают интересным способом: зигзагообразно, оставляя интересный орнамент. С помощью узора выделяют оконные проемы и цоколь. Над дверными и оконными рамами кирпичи кладут в невысокие ряды вертикальными способом. Если дверь имеет полукруглую конструкцию, то кирпичи поверх нее выкладывают в форме арки.
Выполнение отделки фасада одноэтажного дома декоративным кирпичом желтого цвета Источник vevanta.com
Фасад дома из клинкерного кирпича бежевого и коричневого цвета Источник yandex.com
Фасад одноэтажного дома из декоративной штукатурки Источник my-dom-stroy.ru
В каком стиле можно выполнить фасад одноэтажного частного дома − фотогалерея
При оформлении фасада частного дома может быть отдано предпочтение любому стилистическому оформлению. Наиболее популярны:
- Классика.
- Минимализм.
- Авангард.
- Кантри.
- Колониальный.
При разработке проекта дома на 100 кв. м необязательно придерживаться одного стиля. Нередко смешение нескольких направлений позволяет получить эффектный и красивый результат. Необычный дизайн имеют дома, в которых современный «шале» дополняется элементами, характерными для классики.
Оформление фасада должно выполняться в соответствии с проектом
Фото одноэтажных коттеджей: какие материалы используются при оформлении фасадов
Выбор стилистического направления оказывает прямое влияние на выбор материалов, используемых при оформлении фасада. Для дома в викторианском стиле следует приобрести натуральный камень или отдать предпочтение классической штукатурке. Для финских коттеджей потребуются деревянные отделочные материалы. У домов в смешанном стиле кирпичная кладка может сочетаться с сайдинговыми фасадными панелями.
Для оформления фасада частного дома чаще всего используют:
- штукатурку. Имея доступную стоимостью, такой материал позволяет сформировать разнообразную фактуру и представлен в широкой цветовой гамме;
- сайдинговые панели. Производители предлагают материал, имитирующий природные материалы. Доступная стоимость и простой монтаж делают возможным оформление фасада своими руками;
- натуральный камень. Из-за большого веса чаще всего используется при оформлении цокольного этажа;
- искусственный камень. Весит меньше натурального и подходит для оформления навесных фасадов либо непосредственно стен дома;
- дерево. Предпочтение отдаётся евровагонке или блок-хаусу. Такой материал эффектно смотрится при реализации проекта с панорамными окнами.
С фотоодноэтажных коттеджей можно познакомиться ниже:
1 из 9









Статья по теме:
Особенности планировки и зонирования одноэтажного дома до 100 м²
Разрабатывая планировку одноэтажной постройки, следует учесть:
Расположение строения относительно розы ветров. Оптимальным считается решение, при котором ветер направляется на скат кровли. При таком расположении при сильных порывах снижается ветровая нагрузка, а осадки не заливают фронтоны. Универсальными являются вальмовые и полувальмовые кровли.
Вальмовая кровля является универсальной
Особенности ландшафта на участке. Не стоит располагать жилую одноэтажную постройку в самой высокой либо самой низкой точке участка.
Местоположение дома должно выбираться осознанно
Расположение строения относительно сторон света. Данный факт имеет принципиальное значение при разработке дизайн-проекта оформления конкретного помещения.
Направление сторон света − важный критерий при разработке проекта
- Наличие на участке других строений и их удалённость от жилой постройки.
- Схему коммуникаций и их привязку к внутренним коммуникационным системам.
- Форму строения.
Конфигурация частного дома влияет на будущую планировку
- Возможность рационального распоряжения внутренним пространством после незначительного внесения изменений в разработанный проект.
- Квадратуру и назначение комнат.
Оптимизация длины трубопровода позволяет повысить качество его функционирования. Уменьшение количества соединений снижает риск возникновения протечек. При этом следует учитывать требования санитарно-гигиенических норм. Для отвода стоков следует использовать специальную яму. Ливнёвку и водоёмы для этой цели использовать нельзя.
К недостаткам малогабаритного строительства стоит отнести ограниченное внутреннее пространство. Грамотно выполненное зонирование позволит сделать жилое здание более комфортным и функциональным.
Проекты домов до 100 м² предполагают размещение строения на участке площадью 4–8 соток. Можно предусмотреть несколько жилых комнат, холл, кухню, санузел. При необходимости можно построить мансарду, которая позволит увеличить жилую площадь. Мансардное помещение чаще используется для размещения спален, ванной комнаты или гардеробной. Предлагаем познакомиться с интересными проектами.
Статья по теме:
Одноэтажный коттедж 6х6 метров
Планировка дома с размерами 6х6 метров получается небольшой. Но ее можно сделать довольно функциональной, если обустроить несколько полезных комнат: кухню, гостиную и прихожую.

План этажа при площади дома 80 квадратных метровИсточник apxibobr.arxip.com
Если это небольшой загородный домик, то его можно организовать с уличным санузлом или сделать отдельную пристройку. В гостиной можно обустроить и временную спальню, поставив широкий диван.
В таком доме комнаты получаются совсем небольшими. В подобной планировке часто применяют заполнение жилых помещений текстильными предметами: мягкими уголками, декором, занавесками. Но в таких случаях интерьер должен быть сдержанным и не нагроможденным.

Проект дома из бруса 12 квадратных метровИсточник brushaus.ru
Небольшие дома хорошо прогреваются с помощью дровяного камина, поэтому в большинстве случаев нет необходимости прокладывать газопровод.
План одноэтажного дома до 100 кв. м – возведение постройки для комфортной жизни
Одноэтажные дома с мансардой, площадью до 100 кв.м. могут стать прекрасным решением для небольших участков, расположенных в пределах города. Такие конструкции очень популярны благодаря доступной стоимости и небольших физических затрат на возведение. Причем для строительства можно использовать разный материал начиная от древесины и до бетонных блоков.
Самый простой, скромный, но красивый вариант
Есть ряд достоинств небольшого домика с мансардой:
- высокая скорость возведения постройки и составления проекта;
- меньше материальных затрат на фундамент и стройматериалы;
- легче обеспечить все помещение необходимыми коммуникациями;
- можно заказать готовый проект эконом или люкс класса;
- постройку можно возвести почти на любом типе почвы, не опасаясь за разрушение или осадку дома.
Конструкция с мансардой обеспечит дополнительную площадь
К недостаткам можно отнести ограниченность пространства и вариантов планировки, так как всего 3-4 полноценных комнаты смогут поместиться на первом этаже.
Вариант с небольшой терраской
Среди типовых проектов, выделяют габариты:
- 6х6;
- 9х9;
- 8х10 м.
Каждая конструкция имеет свои особенности, а внешне может быть выполнена в любом дизайнерском исполнении, выгодно отличая ваш дом от других.
План одноэтажного дома 6 на 6 м: интересные фото-примеры готовых работ
На планировку одноэтажного коттеджа может уйти немало времени, зато сам процесс возведения, с хорошо подготовленным планом, пойдет намного быстрее
В маленьком доме важно учесть правильное расположение комнат с максимально рациональным использованием всей жилой площади
Среди планов маленьких домов 6х6 м с один этажом можно найти очень интересные варианты. Вот несколько фотопримеров схем и готовых построек:
Простая планировка
Вариант с одной большой гостиной
План дома 6х6 м с мансардным этажом
Можно выбрать проект чуть большего размера 6х8 м
Жилая площадь в таком скромном помещении составляет всего 36 м², но даже на такой площади можно обустроить комнату для сна и гостиную, а на мансарду переместить детскую. Санузел лучше сделать совмещенным, освободив место для кухни или прихожей. Такие конструкции часто выбирают пожилые семейные пары или небольшие молодые семьи с одним ребенком.
План одноэтажного дома 9 на 9 м: фото-примеры с вариантами распределения комнат
Планировок одноэтажного дома 9 на 9 м довольно много, несмотря на скромную жилую площадь. Сделать план можно самостоятельно или заказать готовый вариант у мастеров. Вот несколько интересных вариантов расположения комнат:
Расположение комнат с двумя спальнями
Угловая планировка. Можно сделать большое крыльцо
Вариант с терраской
Пример с мансардой
Одноэтажный дом 9 на 9 м можно построить из кирпича, камня, бруса, энергосберегающих панелей или пеноблоков. Последний вариант самый доступный в цене. К любой конструкции можно добавить гараж или мансарду, чтобы сделать помещение больше и функциональнее.
В среднем общая жилая площадь составит 109 м², а фасады могут быть самыми разнообразными.
Вот несколько готовых красивых домов 9х9 м:
Угловой вариант с крыльцом с облицовкой из камняАккуратный вариант с мансардным этажомДеревянный домик с крыльцомСочетание облицовки из древесины и камня
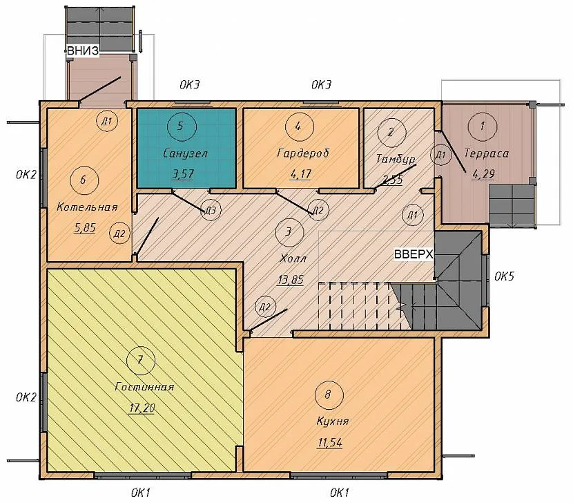
Планировка одноэтажного дома 8 на 10 м с фото
Планируя возведение дома и составляя проект, стоит продумывать много нюансов, начиная от количества человек в семье, заканчивая расположением постройки на участке с выбором расположения окон.
Современные технологии позволяют создать 3D проекты одноэтажных домов 8 на 10 м с учетом их расположения на участке. Для этого используют специальные компьютерные программы, где есть возможность даже распределить комнаты и расставить мебель.
Вариант 3D проектирования внешнего облика дома
Планировок и вариантов распределения жилых комнат много, можно выбрать проект одноэтажного дома 8х10 с мансардой или пристроенным гаражом, а также продумать цокольный этаж. Все это позволяет максимально увеличить полезную площадь в постройке.
Вот несколько интересных планировок:
Дом с мансардой, план первого этажа
Готовый дизайнерский дом из древесины с большой открытой терраской
3D моделирование расположения дома на участке
Вариант расположения комнат с мансардным этажом
Особенности материала для строительства
Для домов используется строительный или строганый брус прямоугольного сечения с четкими формами и размерами. С ним легко и быстро работать, он походит для угловых соединений и сравнительно недорогой. В отличие от пиленого, он не дает такой сильной усадки, так что лучше подходит для строительства.
Клееный брус делается из ламелей разных пород дерева – например, лиственницы и сосны. Он прочнее, долговечнее, с лучшими изоляционными свойствами и минимальной усадкой, но стоит дороже. Профилированный с пазо-гребневой системой хорош в монтаже и не требует обязательной отделки, но нуждается в теплоизоляции.
Благодаря естественным смолам, которые содержатся в древесине, в комнатах дома из бруса всегда царит здоровый микроклимат
Это полностью натуральный и экологичный материал, что особенно важно сейчас, на волне эко-трендов. Дома строятся быстро – гораздо быстрее, чем из кирпича, и без такого массивного фундамента
Естественные изоляционные свойства дерева превосходят большинство современных материалов. При этом стоимость строительства уступает разве что еще более бюджетной каркасной технологии. Но и каркасное строительство, по своей сути, использует все тот же брус в сочетании с плитами.
Но помни, что дерево требует бережного хранения, обращения и специальной обработки. При неправильной сушке появляются внутренние напряжение, оно трескается и деформируется. От гниения, грибка, плесени и вредителей обязательно нужны антисептики, а для пожаробезопасности – антипирены.
Из каких материалов можно сделать одноэтажный частный дом
При выборе плана одноэтажного дома нужно решить ещё одну задачу − определиться с материалом. Главный вопрос – какие материалы сейчас используются в строительстве, и все основные их достоинства и недостатки.
Проекты домов из бруса
Брус – это обработанные брёвна, для строительства используют материалы полуовального, квадратного и прямоугольного сечения. Каждый из них обладает своими достоинствами и недостатками, например, брус полуовального сечения–косой срез позволяет лучшему стеканию дождевой воды.
Основные его преимущества:
- самый экологичный материал;
- стоимость намного ниже, чем у дома, построенного из кирпича;
- невысокая теплопроводность, дома из бруса очень тёплые;
- природная красота дерева – строения не нуждаются в дополнительной внешней или внутренней отделке;
- можно ставить на лёгкие фундаменты;
- долговечны.
Негативных особенностей брус практически не имеет, но те, что есть, достаточно серьёзны:
- дерево хорошо горит;
- подвержено гниению и поражению грибком, для предотвращения этого процесса необходимо периодически обрабатывать специальными составами;
- усадка может продлиться до пяти лет.
Одноэтажный дом из бруса с открытой террасой
Проекты домов из пеноблоков
Внешний вид пеноблоков не так красив, как дерево, но это компенсируется его достоинствами:
- скорость строительства в 9 раз выше, чем кирпичного;
- работы можно выполнять самостоятельно;
- точность геометрических параметров позволяет возводить ровные стены;
- низкая практически 100% теплопроводность;
- 100% огнеупорность;
- не токсичен;
- благодаря пористой структуре хорошо вентилируется, на него не влияют температурные скачки.
Материал обладает и некоторыми недостатками:
- с годами могут появиться трещины;
- до строительства желательно хранить материал на складе;
- нужен более мощный фундамент.
ФОТО: z500proekty.ru/projekt/z349.html Одноэтажный дом из пеноблоков в английском стиле
Проекты домов из кирпича
Дома, построенные из кирпича, – это массивные строения, которые имеют красивый внешний вид, кроме того, они прекрасно противостоят природным явлениям. К основным достоинствам материала относятся:
- большой срок эксплуатации;
- отличная морозостойкость;
- точные геометрические параметры;
- хорошая прочность;
- красивый внешний вид.
Однако материал имеет ряд существенных недостатков:
- невысокая влагостойкость. Это можно наблюдать, например, как во время дождя темнеет силикатный кирпич, именно поэтому его не рекомендуется использовать в районах с повышенной влажностью и для строительства подвальных помещений;
- повышенная теплопроводность – требуется дополнительное утепление стен;
- большой вес, требуется возведение более крепкого фундамента;
- стоимость материала довольно высокая.
Индивидуальный проект одноэтажного дома из кирпича
Проекты домов на металлическом и деревянном каркасе
Каркасное строительство не привязано к конкретной климатической зоне, основное условие для него – комфорт рабочих во время возведения. Благодаря современным технологиям можно быстро возвести каркас, стоимость которого значительно ниже, чем у кирпича, пеноблоков или бруса.
К основным достоинствам относятся:
- высокая прочность;
- большой срок эксплуатации;
- возведение конструкции за рекордно короткие сроки;
- устойчивы к различным погодным условиям;
- низкие теплопотери;
- экологичность;
- сейсмоустойчивость;
- безусадочное строительство;
- можно выбрать любой архитектурный проект.
Технология также имеет ряд минусов:
- во время пожара оцинковка теряет свои характеристики, строение сворачивает, словно по спирали, она перекашивается, брус обугливается;
- нельзя применять тяжёлые строительные материалы;
- металлический каркас хорошо проводит электрический ток.
Металлокаркасная схема строительства
Материалы для строительства одноэтажного дома
Выбор материала для строительства зависит от желания и финансовых возможностей заказчика.
Каркасный дом

Каркас состоит из вертикальных стоек, между которыми монтируют горизонтальную обвязку. Все элементы каркаса и пол делают из одного материала. Лучше для этого подходит дуб или лиственница. Между собой элементы крепят деревянными нагелями, так как металлический крепеж может способствовать расшатыванию конструкции. Снаружи каркас обивают досками. Каркасные панели состоят из утеплителя, расположенного между двумя слоями ОСП. Щели между панелями заполняют термоизоляционным материалом. Каркасный дом – легкая и прочная конструкция. Для нее не требуется возведения массивного фундамента.
Дом из пеноблоков

Дом из пеноблоков собирается быстро. Благодаря пористости, стены хорошо задерживают тепло и звук, превосходя по этим параметрам кирпич. Однако хрупкий материал не устойчив к механическому воздействию и достаточно гигроскопичен. Это снижает несущую способность стен и способствует растрескиванию.
Кирпичный дом
Надежное и долговечное сооружение. Кирпич экологичен, хорошо сохраняет тепло, пропускает воздух. Недостатками являются высокая стоимость и трудоемкость возведения стен. Большой вес готовой конструкции предъявляет повышенные требования к фундаменту и структуре грунта.
Зависимость от фундамента
Планировка внутренних помещений напрямую зависит от фундамента дома.
Обратите внимание!
- Потолок с балками: ТОП-170 фото и видео идей оформления потолка с балками. Подбор дизайна для низких и высоких потолков. Виды материалов для балок
-
Гостиная в частном доме: ТОП-180 фото вариантов дизайнов гостиный в частом доме. Советы по зонированию комнаты. Стилистика и цвета
-
Прихожая в частном доме: нюансы дизайна прихожей в частном доме. Выбор стилистики и цветовых решений. Материалы отделки. Фото и видео-обзоры
Если хозяин предпочтёт ленточный глубокий фундамент, то под домом можно оборудовать капитальный подвал, куда вынести все технические помещения, или, по крайней мере, выкопать погреб.
При столбчатом или свайном фундаментах такая возможность будет отсутствовать.
А от этого напрямую зависит расположение внутренних помещений дома.
Какие выгоды дает цокольный этаж
- Очевидно, что этот дом дает его владельцам немалые преимущества. Учитывая, что стоимость реализации проекта дома с цокольным этажом обойдется дешевле, чем возведение надземного этажа двухэтажного дома, мы получаем первое преимущество — экономия средств на строительстве.
- Кроме того, цокольный этаж может быть большей площади, чем площадь самого дома. А это позволяет разнообразить архитектуру здания. Например, перекрытие цокольного этажа может послужить основой для обширной веранды или балкона.
- Но главное достоинство дома с цоколем в том, что появляется возможность перенести вспомогательные помещения из жилой зоны на нижний этаж. Согласитесь, что логично организовать здесь котельную, водомерный узел, прачечную. Иногда этот этаж используют как рекреативную зону, разместив там спортзал, бильярдную или сауну. Встречаются проекты, где подвальное помещение используется в качестве места для хранения инструментов или продуктов. Некоторые обустраивают в таком помещении винотеку. Но чаще всего цокольный этаж используется под гараж с мастерской.
Проект дома с цоколем: ложка дегтя в бочке меда
- Но не на каждом участке можно построить дом с цокольным этажом. Нужно понимать, что такое здание разумно возводить там, где грунтовые воды залегают достаточно глубоко. В противном случае от идеи придется отказаться, потому что устройство гидроизоляции, в конечном итоге, обойдется дороже постройки наземного этажа.
- Стоит упомянуть еще один минус цокольного этажа, с которым сложно поспорить — отсутствие естественного освещения. Но здесь уже все зависит от вас: не нравится темнота — позаботьтесь об освещении, желаете сэкономить — передвигайтесь по подвалу в полумраке с фонариком. В проектах Dom4M мы стараемся по возможности минимизировать этот фактор, но тем не менее, его стоит учитывать.
Выбор в пользу проекта дома с цокольным этажом очевиден
Подведем итог. Конечно же, определенные расходы на цокольный этаж будут. Но, во-первых, они не соизмеримы по сравнению со строительством полноценного наземного этажа. А, во-вторых, вы получаете колоссальный выигрыш в виде дополнительных квадратных метров полезной площади, которые можете использовать по своему усмотрению.
Проекты домов с цоколем, всегда популярны и востребованы. Такие загородные строения обладают многими плюсами. Себестоимость проекта, предусматривающего цоколь и мансарду, будет гораздо ниже, чем у двухэтажного дома. За счет цокольного помещения можно увеличить полезную площадь строения и освободить место на первом этаже. Проект дома с цоколем, особенно выгоден тогда, когда ваш участок небольшой. Используя эти преимущества, вы можете организовать планировку помещений максимально рационально. В цоколе можно разместить что угодно: подсобное помещение, бильярдную, погреб. Мансардный этаж не только станет украшением фасада здания, но станет полезным дополнением с точки зрения функциональности. Компания House Expert предлагает богатый выбор проектов построек с цоколем и мансардой на любой вкус. Если вы не сможете найти подходящий среди готовых вариантов, то мы создадим для вас индивидуальный проект, учитывая все дополнения требования.
Внутренняя отделка дома
Для отделки пола используется ламинат, а для влажных помещений – плитка, керамогранит или наливные полы. Распространены полы с подогревом, которые решают проблему холодного покрытия. Они же позволяют обойтись без ненужных ковриков и дорожек.
Стены просто окрашиваются в один или несколько нейтральных оттенков. Обои, вагонка, рельефная штукатурка и другие сложные фактуры не слишком актуальны для современной внутренней отделки. Вместо громоздких портьер используются римские шторы.
Потолки тоже красят одним нейтральным цветом, оставляя видимыми балки. Или полностью затягивают натяжным полотном, которое позволяет встроить многоуровневое зональное освещение. Вместо центральной люстры используются встроенные светильники или серии подвесных плафонов. Декоративная светодиодная лента позволяет создать эффект парящего потолка.
Как планировать интерьер в доме с помощью визуальных эффектов
Если застройка дома уже выполнена, но при этом он имеет незначительную площадь, можно исправить эту ситуацию визуально. Особенно к таким способам прибегают, когда пришла пора создавать интерьер. Чтобы оформить все без изъянов, необходимо:
- Использовать больше светлой мебели и глянцевых фасадов гарнитура.
- Приветствуются стеклянные и зеркальные поверхности (ими часто отделывают стены).
- Маленькие кухни не нужно загромождать габаритными столами и стульями. Лучше предусмотреть простенький мягкий уголок.
- В маленьких комнатах лучше расставлять угловую мебель, чтобы центральная часть пространства оставалась общедоступной и свободной.
- В одном помещении очень легко совместить несколько функциональных зон. Для этого нужно избавиться от лишнего гарнитура.
- В жилых комнатах часто ставят складные диваны или двухъярусные кровати. С помощью такой задумки в помещении в дневное время всегда будет присутствовать свободная площадь.
Планировка дома часто влечет за собой большие затраты. Поэтому ее изначально нужно провести без ошибок и погрешностей: начиная от фундамента, заканчивая кровлей.
Стильный «вигвам», или в духе американских прерий
Это направление дизайна обязано своим рождением американскому архитектору конца XIX века Фрэнку Ллойду Райту. Характерные особенности архитектуры: вытянутые в горизонтальном направлении формы, невысокие крыши, опоясывающие открытые галереи, сливающиеся с большими окнами. Цвет фасадов соответствует окружающей природе: камню, лесу, степным травам.
15. Об индейском «вигваме» здесь напоминает разве что компактность и крыша. Кстати она чем-то похожа по форме на китайские шатровые многоступенчатые кровли, только с прямыми краями
16. Фантастический, и одновременно очень простой, земной облик этого здания подкупает естественностью и отсутствием нарочитых элементов «украшательства»
17. Небольшое уютное строение с каменной отделкой выглядит так, как будто его построили из собранного в округе природного материала
18. Достаточно солидное по площади здание уже мало похоже на «простую индейскую избу», что подчеркивают дорогие отделочные материалы. Тем не менее, это типичный представитель стиля Prairie
19. На фото показан дизайн обычной американской гостиной
Рекомендации − заказывать ли проект или выбрать готовый
Можно заказать индивидуальный план одноэтажного дома на 100 м² или выбрать типовой, в интернете размещено много разных предложений в любой ценовой категории.
Также выбирать типовое решение можно в следующих случаях:
- если устраивает планировка, площадь, высота потолка, размеры окон;
- если для строительства дома по проекту не потребуются дополнительные земляные работы;
- по типовому проекту трудно определить окончательный вариант дома. Если он уже воплощён в жизнь, можно поговорить обо всех особенностях с его владельцами;
- типовой проект можно выбирать, если он устраивает на 95%, а на сэкономленные средства купить более качественные материалы.
Готовый проект одноэтажного дома на 100 м² существенно экономит время, можно за небольшую стоимость с минимальными корректировками подобрать оптимальное решение. Но нужно помнить, что в нём нет привязки к местности, а также не будут учтены особенности рельефа. Ответить на вопрос, что лучше – готовый или типовой проект, сложно, в каждом случае нужно принимать своё решение. Если выбор в сторону индивидуального плана, желательно доверить его выполнение такой компании, которая сможет проводить и строительные работы.
Типовой проект одноэтажного дома
Статья по теме:






























